Penthouse te koop in Pilar de la Horadada, Alicante, Spanje
- €455.000
Overzicht
- Penthouse
- 3
- 2
- 106 m²
- 312353-732
Beschrijving
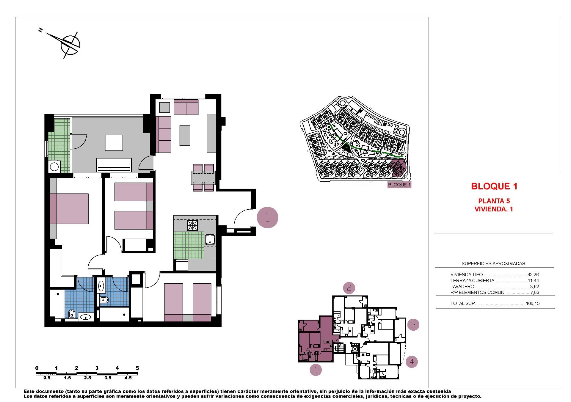
Nieuwbouw appartementen en bungalows in Mil Palmeras Modern wooncomplex op een toplocatie Ontdek een prachtig nieuw wooncomplex in het charmante kustgebied van Mil Palmeras, met een selectie hoogwaardige appartementen en bungalows die zijn ontworpen om aan de moderne levensstandaard te voldoen. Dit complex ligt op slechts 600 meter van de zandstranden van Mil Palmeras en combineert comfort, stijl en gemak. Ruime en stijlvolle appartementen en bungalows Kies uit appartementen met 2 of 3 slaapkamers, elk met 2 badkamers en ruime terrassen. Je kunt ook kiezen voor bungalows met 2 slaapkamers en 2 badkamers, beschikbaar op de begane grond met een privétuin of op de bovenste verdieping met een exclusief solarium. Hoogwaardige afwerking voor modern wonen Dit project biedt uitzonderlijke kenmerken en afwerkingen: PVC buitenschrijnwerk met thermische onderbreking en dubbele beglazing “Climalit” met lage emissiviteit. Verstevigde toegangsdeuren voor extra veiligheid. Badkamers uitgerust met wastafel, spiegels en moderne armaturen. Ingebouwde kasten met LED-verlichting aan de binnenkant, lades en hangrails. Warm water geleverd door aerothermische technologie voor energie-efficiëntie. Pre-installatie voor airconditioning en verwarming in woon- en slaapkamers. Exclusieve gemeenschapsvoorzieningen Het complex is volledig omheind en beschikt over: Prachtig aangelegde gemeenschappelijke tuinen. Sprankelende zwembaden voor bewoners. Optionele ondergrondse parkeerplaatsen en bergingen voor extra gemak. Toplocatie in Mil Palmeras Dit complex ligt tussen Campoamor en Torre de la Horadada en biedt gemakkelijke toegang tot plaatselijke voorzieningen, scholen, restaurants en sportfaciliteiten die het hele jaar door geopend zijn. Mil Palmeras staat bekend om het charmante stadsplein en de levendige “restaurantstraat” met diverse internationale keukens. Voor natuurliefhebbers bieden het natuurpark Lo Monte, een beschermd vogelreservaat, en het natuurpark Río Seco perfecte plekken om te wandelen en te ontspannen. Nabijheid van belangrijke bezienswaardigheden Internationale luchthaven Murcia: 40 km (ongeveer 45 minuten). Luchthaven Alicante: 75 km (ongeveer 45 minuten). Dichtstbijzijnde golfbanen: Op minder dan 10 km afstand. Winkelcentra: 8 km tot Zenia Boulevard. Jachthavens en havens: 5 km naar Torre de la Horadada. Uw droomhuis wacht Mis de kans niet om een woning te bezitten in dit uitzonderlijke wooncomplex. Of je nu op zoek bent naar een vakantiehuis of een permanente verblijfplaats, dit project in Mil Palmeras heeft het allemaal. Neem vandaag nog contact met ons op voor meer informatie of om een bezichtiging te plannen!
Energieklasse
-
Energieklasse: B
- A+
- A
- | Energieklasse BB
- C
- D
- E
- F
- G
- H
Adres
Openen op Google Maps-
Adres: De exacte locatie is niet opgegeven door de makelaar.
-
Stad: Pilar de la Horadada
-
Provincie: Alicante
-
Land: Spanje
Details
Bijgewerkt op januari 31, 2026 op 6:28 am-
ID 312353-732
-
Prijs €455.000
-
Woonoppervlakte 106 m²
-
Slaapkamers 3
-
Badkamers 2
-
Woning type Penthouse
-
Eigenschapstatus Te koop
Hypotheekcalculator
-
Aanbetaling
-
Leningbedrag
-
Maandelijkse hypotheekbetaling


