Finca / Landhuis te koop in Cartama, Malaga, Spanje
- €275.000
Overzicht
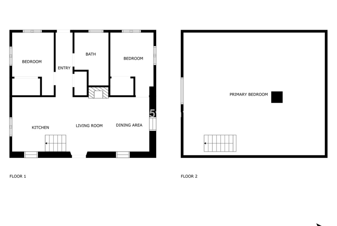
- Finca / Landhuis
- 3
- 1
- 156 m²
- 1928 m²
- 312353-4341
Beschrijving
Adres
Openen op Google Maps-
Adres: De exacte locatie is niet opgegeven door de makelaar.
-
Stad: Cartama
-
Provincie: Malaga
-
Land: Spanje
Details
Bijgewerkt op januari 19, 2026 op 2:08 am-
ID 312353-4341
-
Prijs €275.000
-
Woonoppervlakte 156 m²
-
Perceelgrootte 1928 m²
-
Slaapkamers 3
-
Badkamer 1
-
Woning type Finca / Landhuis
-
Eigenschapstatus Te koop
Hypotheekcalculator
Maandelijks
-
Aanbetaling
-
Leningbedrag
-
Maandelijkse hypotheekbetaling


