Appartement te koop in Hondon de las Nieves, Alicante, Spanje
- €250.000
Overzicht
- Appartement
- 3
- 2
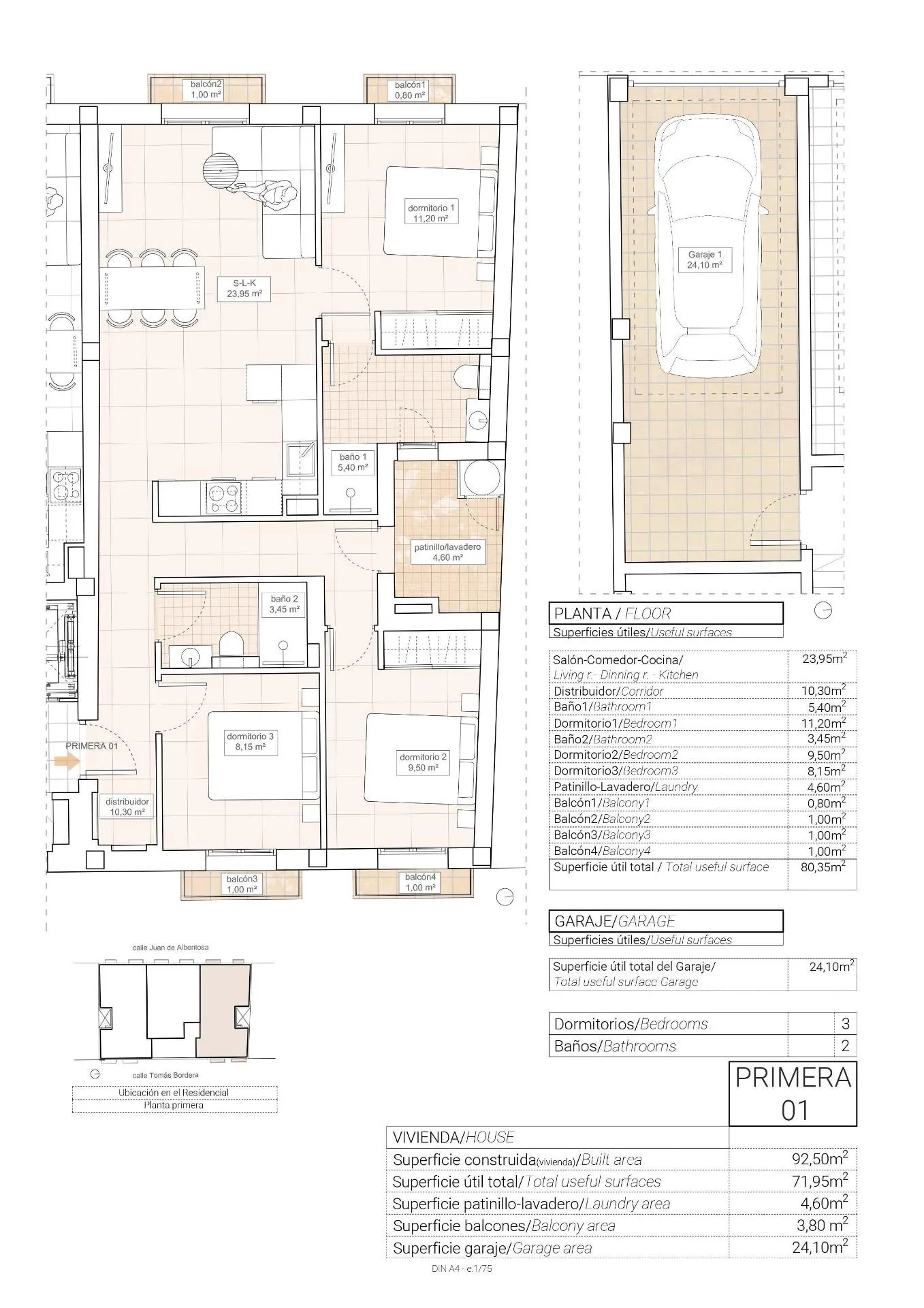
- 92 m²
- 433237-N8772
Beschrijving
Moderne appartementen met wijngaarduitzicht Nieuwe appartementen in een rustige vallei Deze eigentijdse appartementen bevinden zich in Hondón de las Nieves, een charmante stad gelegen in een schilderachtige vallei omringd door olijfgaarden en amandelbomen. Dit exclusieve wooncomplex biedt appartementen met 1, 2 en 3 slaapkamers, ontworpen voor comfort en energiezuinigheid met adembenemend uitzicht op de Vinalopó-wijngaarden. Hoogwaardige voorzieningen Elk appartement is gebouwd met eersteklas materialen en afwerkingen. Ruime interieurs met open indelingen en volledig ingerichte keukens met granieten werkbladen. Badkamers van hoge kwaliteit met ingebouwde reservoirs en topklasse sanitair. Energiezuinig ontwerp met aerothermische waterverwarming. Voorgeïnstalleerde airconditioning voor comfort het hele jaar door. Dubbel glas aluminium ramen met thermische isolatie. Een beveiligde voordeur voor extra gemoedsrust. Een privé-garage op de begane grond en lifttoegang voor gemak. Bovendien zijn er zonnepanelen op het dak geïnstalleerd voor verbeterde energie-efficiëntie. Uitstekende locatie Hondón de las Nieves is een Spaans dorp bekend om zijn wijnproductie, traditionele cultuur en landschappen. Het biedt gemakkelijke toegang tot essentiële diensten en belangrijke locaties zoals de luchthaven van Alicante op 30 km, de stranden van Alicante op 35 km, Elche op 20 km, Crevillente Natuurpark op 10 km, en golfbanen op 25 km. Geniet van de rust van de Hondón-vallei terwijl u dicht bij de levendige steden Alicante en Elche blijft. Deze moderne appartementen zijn ideaal voor een vakantiehuis, investering of permanente bewoning.
Adres
Openen op Google Maps-
Adres: De exacte locatie is niet opgegeven door de makelaar.
-
Stad: Hondon de las Nieves
-
Provincie: Alicante
-
Land: Spanje
Details
Bijgewerkt op februari 21, 2026 op 10:08 pm-
ID 433237-N8772
-
Prijs €250.000
-
Woonoppervlakte 92 m²
-
Slaapkamers 3
-
Badkamers 2
-
Woning type Appartement
-
Eigenschapstatus Te koop
Hypotheekcalculator
-
Aanbetaling
-
Leningbedrag
-
Maandelijkse hypotheekbetaling


